Overview
Shitet apartament 2+1+2 tek Ish Fusha e Aviacionit, rruga “Simon Gjoni”, Tiranë.
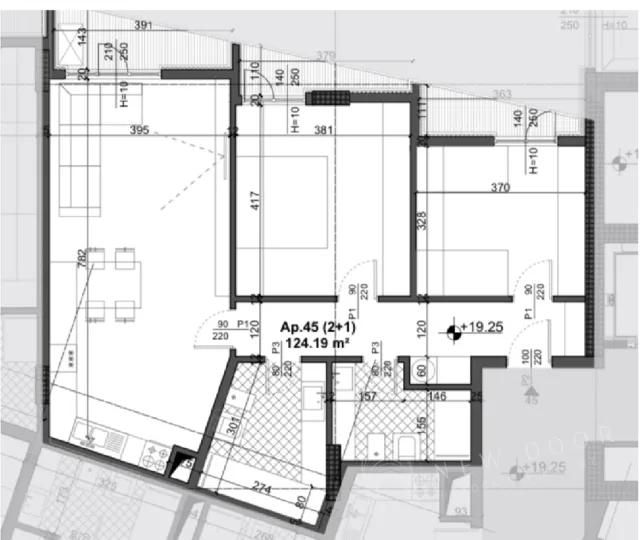
– Sipërfaqe bruto: 124.19 m²
– Sipërfaqe neto: 104.6 m²
– Apartamenti është në ndërtim në fazë karabinaje
– Kati 5 banim
————
Kontakto në numrat e poshtëshënuar dhe lër takim me një nga agjentët tanë për të vizituar pronën.
📲 +355 68 58 63 063
📲 +355 69 66 34 777
📍 Adresa: Prapa postës nr.8, Sheshi Willson.
Details
-
Price:€1300 m²
-
Status:






